×

Springfield Lakes

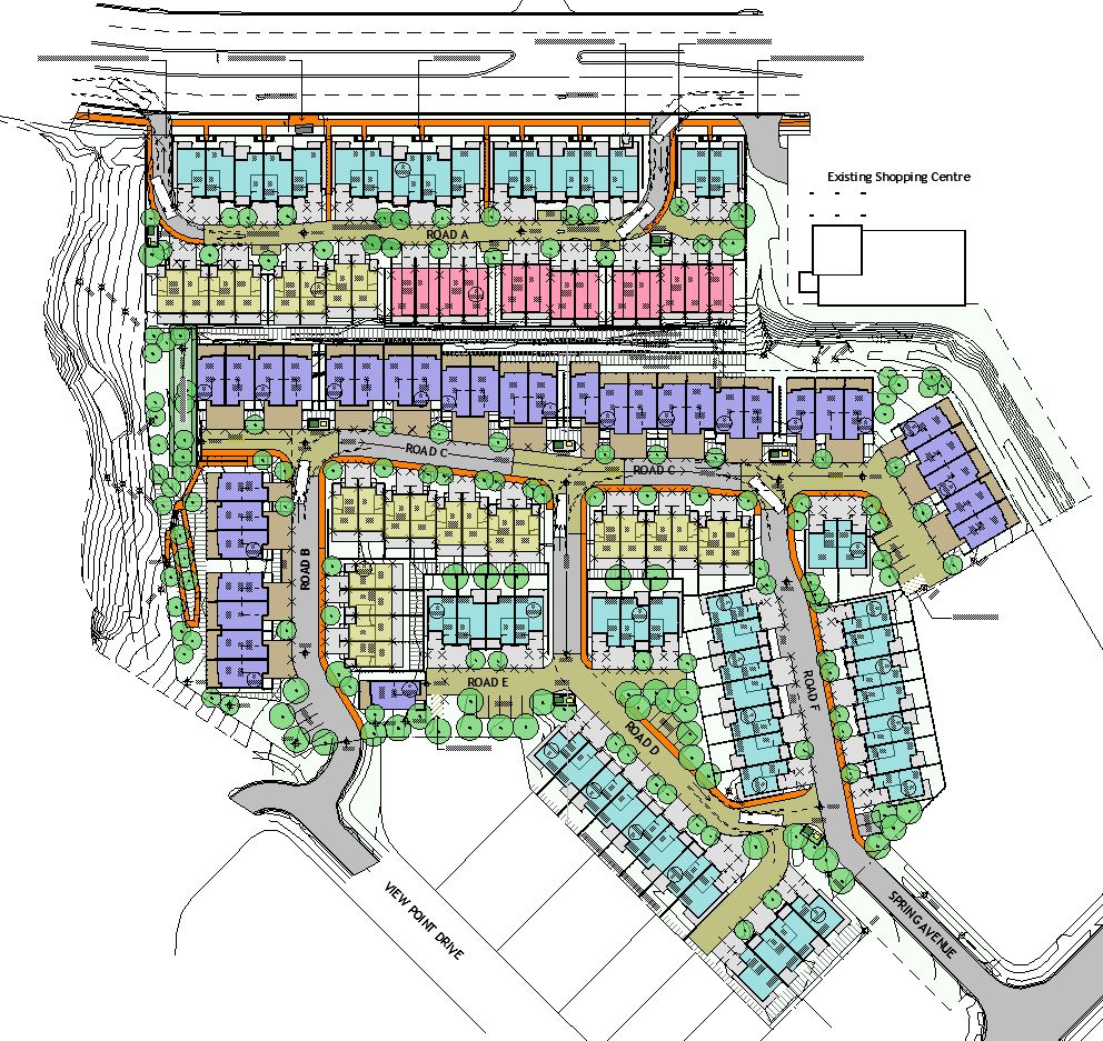
THE PROJECT

This medium density residential development is designed to be constructed in four stages, with the layout arranged to take advantage of the sloping site contours, for views to the nearby lakes and enjoying the benefit of natural breezes.

In addition to two-storey and split-level designs, one unique townhouse layout provides a garage and living area at the first floor level, with bedrooms on the lower level. This townhouse type is used where the site slopes away from the road.

SCALE

2.66 HA

Client

VVV Pty Ltd

Our role

Concept & Schematic Design | Development Application 

Team

Len Powe, Michael Ellis

Similar Projects

Kedron Aged Care

Sensitive design for specific aged care needs.

explore project

YourTown Milton

Clean up, restoration and reinvigoration after the 2011 floods…

explore project

Dalby Aquatic Centre Grandstand

The renovation to the Dalby Aquatic Centre Grandstand was a honour to undertake…

explore project